VERKAUFT: Großes Einfamilienhaus auf ca. 1.233m2 Gartengrundstück in 26135 Oldenburg-Krusenbusch
VERKAUFT
Einfamilienhaus im Bungalowstil – großzügig, gepflegt und voller Möglichkeiten
Willkommen in Ihrem neuen Zuhause! Dieses Einfamilienhaus im Bungalowstil mit ausgebautem Dachgeschoss wurde über die Jahre regelmäßig modernisiert und befindet sich in einem sehr gepflegten Zustand. Auf einem ca. 1.233 m² großen Grundstück erwartet Sie viel Platz für die ganze Familie – mit schönem Blick ins Grüne und einer gelungenen Mischung aus Ruhe und guter Anbindung.
Praktisch & flexibel im Alltag:
Ein Glasfaseranschluss ist bereits im Haus – perfekt für flexibles Arbeiten im Homeoffice, Video-Calls ohne Störungen und schnelle Verbindungen im ganzen Haus.
Highlights auf einen Blick
- Einfamilienhaus im Bungalowstil mit ausgebautem Dachgeschoss
- ca. 1.200 m² Grundstück in ruhiger Lage auf einem Hintergrundstück
- insgesamt 7 Zimmer, davon 5 Schlafzimmer + Arbeitszimmer
- großzügiges Wohnzimmer mit Kaminzimmer und Zugang zur überdachten Terrasse
- große Wohnküche mit separater Essecke und angrenzendem Hauswirtschaftsraum
- teilunterkellert mit Vorratsraum, Heizungsraum und Hausanschlusstechnik
- Brötje-Gas-Brennwertheizung mit Warmwasserspeicher, Baujahr 2002
- Sicherungsschrank und Glasfaseranschluss vorhanden
- Obergeschoss mit eigenem Wohnbereich (3 Zimmer, Küche, Bad) – ideal für größere Kinder oder Gäste
- gepflegter Garten mit altem Baumbestand, großem Gartenhaus und Pool (Pumpe erneuerungsbedürftig)
- Carport und dadurch eine überdachte Zuwegung direkt zum Seiteneingang in den Hauswirschaftsraum
- gute Verkehrsanbindung (Buslinien 313 & 323, schnelle Anbindung A29 / Bremer Heerstraße)
- alle Einkaufsmöglichkeiten, Gastronomie, Schulen, Kindergärten und Ärzte im Stadtteil Oldenburg-Krusenbusch vorhanden
Flächen im Überblick
- Wohnfläche: ca. 184,94 m²
- Nutzfläche (Keller, HWR etc.): ca. 63,45 m²
- Wohn- und Nutzfläche gesamt: ca. 248,39 m²
- Grundstück: ca. 1.233 m²
- Nicht vermietet – sofort verfügbar
Bauweise & Ausstattung
- Massiv gebaut, zum Teil unterkellert
- Auluminium Carport und weitere Abstellmöglichkeiten im Gartengerätehaus
- Kunststofffenster mit Isolierverglasung
Energieausweis
- Energiebedarfsausweis gültig bis 25.08.2035
- Endenergiebedarf: 125 kWh/(m²·a)
- Energieeffizienzklasse: E
- Heizungsart: Gasbrennwertheizung mit Warmwasserspeicher (Baujahr 2002)
- Wesentlicher Energieträger: Erdgas
Parkmöglichkeiten
- Alu. Carport
- Zusätzlich 2–3PKW-Stellplätze auf dem großen Grundstück
Bausubstanz und Ausstattung
Das Einfamilienhaus wurde 1981 gebaut und 1983 erstmals bezogen. Es verfügt über einen Teilkeller, das Erdgeschoss sowie ein vollausgebautes Dachgeschoss und bietet insgesamt 7 Zimmer auf rund 185 m² Wohnfläche. Das Grundstück umfasst ca. 1.233 m².
Im Jahr 2015 wurde das Erdgeschoss umfassend modernisiert: Alle Fenster (12 Stück) und die Nebeneingangstür, die Bäder, Fußböden, Innentüren und die Einbauküche wurden erneuert. Eine Dachreinigung und Dachbeschichtung erfolgte 2022, dabei wurden auch 5 Gaubenfenster ersetzt.
Für behagliche Wärme sorgt eine Gasheizung aus dem Jahr 2002 und der offene Kamin. Das Badezimmer, der Flur und die Küche sind zusätzlich mit einer Fußbodenheizung ausgestattet, die übrigen Räume werden über Heizkörper beheizt. Zum Haus gehören ein Carport in Alukonstruktion, ein Gartenhaus sowie ein eingelassener Stahlwandpool, der die Sommermonate angenehm ergänzt.
Lage:
Ruhig, naturnah und trotzdem stadtnah – Wohnen am Rand von Oldenburg und dennoch nah dabei
Das Haus liegt auf einem schönen und großen Hintergrundstück mit grünem Ausblick und ruhiger Wohnlage. Die Buslinien 313 und 323 der VWG bringen Sie schnell in die Oldenburger Innenstadt. Mit dem Auto sind Sie bestens angebunden: Die Bremer Heerstraße, die A29 und das Oldenburger Umland erreichen Sie in wenigen Minuten. Im Stadtteil Krusenbusch finden Sie alles für den täglichen Bedarf: Einkaufsmöglichkeiten, Schulen, Kindergärten, Friseure, Restaurants, eine spitzen Eisdiele und vieles mehr.
Die Buslinie 313 und 323 der Oldenburger VWG praktisch direkt vor der Haustür.
Eine ruhige Lage, die Raum zum Durchatmen lässt – und dennoch alle wichtigen Wege angenehm kurzhält.
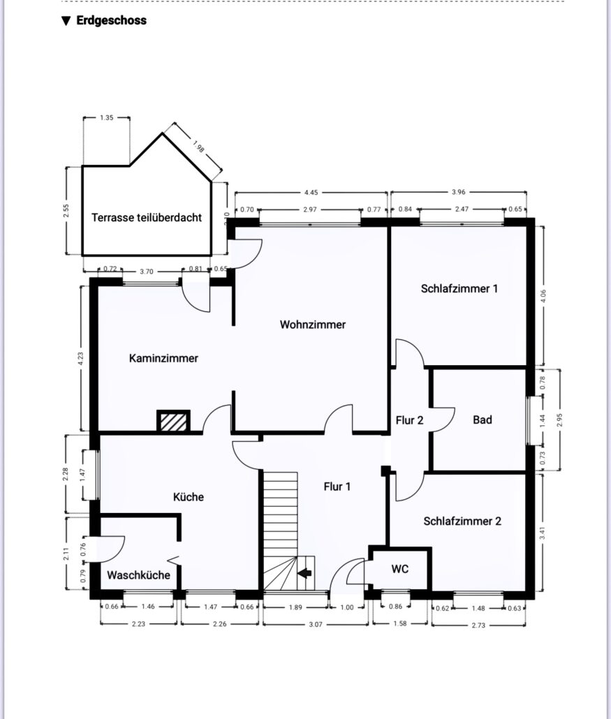
Objektbeschreibung und Aufteilung:
Erdgeschoss – Wohnen mit Atmosphäre
Insgesamt verfügt das Haus über 7 Zimmer, davon 5 Schlafzimmer. Mittelpunkt ist das großzügige Wohnzimmer mit angrenzendem Kaminzimmer. Von hier gelangen Sie direkt auf die überdachte Terrasse – ein wunderbarer Platz für entspannte Abende oder gesellige Runden.
Die große Küche mit Einbauküche bietet reichlich Platz zum Kochen und Genießen. In einer separaten Nische findet ein großer Esstisch Platz – ideal für gemeinsame Mahlzeiten mit Familie und Freunden. Gleich daneben liegt der Hauswirtschaftsraum mit Anschluss für Waschmaschine und Trockner. Besonders praktisch: Der Seiteneingang führt direkt zum Carport, sodass Einkäufe auch bei Regen trockenen Fußes ins Haus gebracht werden können.
Im Erdgeschoss befinden sich zudem ein modernisiertes Gäste-WC, ein hell gefliestes Badezimmer, weitere Schlafzimmer sowie ein Arbeitszimmer.
Obergeschoss – ideal für Kinder oder Gäste
Über die helle Diele führt eine Treppe ins ausgebaute Dachgeschoss. Hier erwarten Sie drei große Schlafzimmer, ein kleines Badezimmer sowie eine zusätzliche, kleine Küche. Dank großer Gauben und Dachflächenfenster sind die Räume lichtdurchflutet und freundlich. Ideal für größere Kinder oder Gäste, die hier fast autark leben können.
Untergeschoss – Technik und Stauraum
Das Haus ist teilunterkellert. Hier finden Sie einen Vorratsraum sowie den Heizungsraum. Verbaut ist eine Brötje-Gas-Brennwertheizung mit Warmwasserspeicher, Baujahr 2002. Außerdem befinden sich hier der Sicherungsschrank und der Anschluss für Glasfaser-Internet, sodass Sie sofort mit moderner Technik versorgt sind.
Grundstück – viel Platz und schöne Anlage
Das große Grundstück ist ideal geschnitten und bietet vielfältige Nutzungsmöglichkeiten. Ein kleiner Pool sorgt in den Sommermonaten für Abkühlung, die zugehörige Pumpe sollte nach Angaben der Eigentümer erneuert werden. Ein solides Aluminium Carport sowie ein Gartenhaus stehen ebenfalls zur Verfügung. Die Bepflanzung ist gepflegt, aber nicht überladen – ergänzt durch einen schönen alten Baumbestand im hinteren Teil des Gartens, der dem Grundstück eine besondere Atmosphäre verleiht.
Fazit
Dieses Haus bietet großzügigen Platz, eine durchdachte Aufteilung und eine solide technische Ausstattung – ohne größeren Renovierungsstau. Nach Maler- und Bodenarbeiten können Sie praktisch sofort einziehen und Ihr neues Zuhause genießen.
Einfach perfekt für die größere Familie
Der Kaufpreis beträgt 529.700, -€, zzgl. Erwerbsnebenkosten (Grunderwerbsteuer 5%, ca. 1,5-2% Notar und Gerichtskosten), gerechnet immer auf den tatsächlichen Kaufpreis der Immobilie.
Provision: Bei Erwerb dieser Immobilie fällt für den Käufer keine zusätzliche Maklerprovision an.
Alle Angaben stammen vom Verkäufer. Die Firma Torsten Hibbeler IMMOBILIEN, Hatten, übernimmt daher keine Haftung für die Richtigkeit der Angaben. Insbesondere die Angaben zur Wohnfläche, zur Nutzfläche und zur Aufteilung der Wohn-/Nutzfläche sind von uns nicht durch ein eigenes Aufmaß oder eine eigene Wohnflächenberechnung kontrolliert worden. Die Angaben zum Baujahr und die Vorlage von Baugenehmigungen sind nicht durch Einsicht in die Bauakte überprüft worden.
Sie sehen gerade einen Platzhalterinhalt von YouTube. Um auf den eigentlichen Inhalt zuzugreifen, klicken Sie auf die Schaltfläche unten. Bitte beachten Sie, dass dabei Daten an Drittanbieter weitergegeben werden.
Zweifamilienhaus mit Blick ins Grüne – Erdgeschoss frei, OG vermietet
Zweifamilienhaus mit Weitblick in Tungeln – viel Platz & Potenzial
Zwei Wohnungen – ca. 399 m² Wohn- und Nutzfläche – Garage – ruhige Lage
Bei dieser Immobilie handelt es sich um ein Wohnhaus mit zwei getrennten Wohneinheiten, einem Vollkeller mit viel Tageslicht und einer großen Garage.
Das Haus liegt idyllisch zwischen Wardenburg und Oldenburg im schönen Ortsteil Tungeln (PLZ 26203) – am Rand einer gewachsenen Wohnsiedlung mit freiem Blick über Wiesen und Felder. Eine wunderbare Mischung aus ruhiger Lage und guter Erreichbarkeit.
Das Haus ist renovierungsbedürftig und wartet auf eine neue, liebevolle Hand – bietet dafür aber jede Menge Raum, Potenzial und eine solide bauliche Grundlage.
Zwei separate Wohneinheiten mit eigenem Zugang
Die beiden Wohnungen sind baulich klar voneinander getrennt und verfügen jeweils über einen eigenen Zugang über das zentrale Treppenhaus. Jede Einheit ist klassisch geschnitten mit vier Zimmern, Küche, Bad und Gäste-WC.
Praktisch & flexibel im Alltag:
Ein Glasfaseranschluss ist bereits beantragt und wird bald realisiert – perfekt für flexibles Arbeiten im Homeoffice, Video-Calls ohne Störungen und schnelle Verbindungen im ganzen Haus.
Erdgeschosswohnung
- Wohnfläche: ca. 118,56 m²
- Großzügiges Wohnzimmer mit Zugang zur hölzernen Terrasse
- Drei weitere Zimmer
- Küche
- Modernes Tageslichtbad
- Modernisiertes Gäste-WC
- Hauswirtschaftsraum mit eigenem Außenzugang
- Nicht vermietet – sofort verfügbar
Obergeschosswohnung
- Wohnfläche: ca. 105,58 m²
- Ähnlicher Grundriss wie im EG, aber mit Loggia (Balkon) statt Terrasse
- Derzeit vermietet (solide und freundlich)
- Kaltmiete: 630 €/Monat
Flächen im Überblick
- Erdgeschoss: ca. 118,56 m² (nicht vermietet)
- Obergeschoss: ca. 105,58 m² (vermietet)
- Nutzfläche (Keller, Garage etc.): ca. 175,26 m²
- Wohn- und Nutzfläche gesamt: ca. 399,40 m²
- Grundstück: ca. 646 m²
Bauweise & Ausstattung
- Massiv gebaut, vollständig unterkellert
- Garage sowie weitere Abstellmöglichkeiten
- Kunststofffenster mit Isolierverglasung
- 2 moderne Gas-Brennwertthermen mit Warmwasserspeicher (je Wohnung separat)
- Separate Heiz- und Nebenkostenabrechnung möglich
Energieausweis
- Energiebedarfsausweis gültig bis 27.07.2032
- Endenergiebedarf: 150,7 kWh/(m²·a)
- Energieeffizienzklasse: E
- Heizungsart: Gasbrennwertheizung mit Warmwasserspeicher (Baujahr 2007)
- Wesentlicher Energieträger: Erdgas E
Parkmöglichkeiten
- Großzügige Garage
- Zusätzlich 3–5 PKW-Stellplätze auf dem Grundstück
Lage:
Ruhig, naturnah und stadtnah – Wohnen am Rand von Tungeln in der Gemeinde Wardenburg
Das Wohnhaus befindet sich am ruhigen Rand einer gewachsenen Siedlung im beliebten Ortsteil Tungeln der Gemeinde Wardenburg. Die Lage verbindet auf angenehme Weise ländliche Ruhe mit der Nähe zur Stadt – sowohl Oldenburg als auch Wardenburg sind in wenigen Minuten mit dem Auto oder dem Fahrrad erreichbar. Auch die Anbindung an den öffentlichen Nahverkehr ist gut – der Bus Richtung Oldenburg oder Wardenburg hält nur wenige Minuten entfernt.
Die Umgebung ist geprägt von Einfamilienhäusern, weiten Grünflächen und einer entspannten Nachbarschaft. Spazier- und Radwege entlang der Hunte, durch die Niederung und über offene Wiesen und Felder sind schnell erreicht – ideal für alle, die gerne draußen unterwegs sind oder mit dem Hund ihre Runde drehen. Die nahegelegenen Ortsteile Hunsmühlen und Bümmerstede ergänzen das Wohnumfeld mit zusätzlicher Infrastruktur und Nahversorgung.
Eine ruhige Lage, die Raum zum Durchatmen lässt – und dennoch alle wichtigen Wege angenehm kurzhält.
Objektbeschreibung
Ein großzügiges Zweifamilienhaus mit viel Platz, Aussicht und Möglichkeiten
Dieses gepflegte Wohnhaus aus dem Jahr 1979 bietet zwei eigenständige Wohneinheiten, einen voll belichteten Keller, eine große Garage sowie zusätzliche Stellplätze auf dem Grundstück. Es liegt ruhig am Rand einer gewachsenen Siedlung und punktet mit einem freien Blick ins Grüne – eine wunderbare Umgebung zum Ankommen und Wohlfühlen.
Die beiden Wohnungen sind jeweils über das zentrale Treppenhaus erreichbar und verfügen über eine klassische Aufteilung mit vier Zimmern, Küche, Bad und Gäste-WC. Die Erdgeschosswohnung ist nicht vermietet und sofort bezugsfrei – ideal zur Eigennutzung. Die Wohnung im Obergeschoss ist solide vermietet und bringt eine monatliche Kaltmiete von 630 €. Die derzeitigen Mieter gelten als freundlich, hilfsbereit und unkompliziert.
Der große Keller mit separatem Zugang und viel Tageslicht bietet reichlich Platz – ob als Werkraum, Stauraum oder Hobbyfläche. Auch das rund 646 m² große Grundstück bietet jede Menge Raum – für Gartenfreude, Spielmöglichkeiten oder einfach zum Entspannen im Grünen.
Die Bausubstanz ist grundsolide, das Haus an vielen Stellen bereits modernisiert – es wartet dennoch auf eine neue, liebevolle Hand. Kunststofffenster mit Isolierverglasung sind ebenso vorhanden wie zwei moderne Gas-Brennwertthermen mit separaten Abrechnungsmöglichkeiten je Wohnung.
Ob Mehrgenerationenwohnen, teils Eigennutzung, reine Vermietung oder langfristige Kapitalanlage: Dieses Haus bietet viele Perspektiven – und eine Lage, in der man gerne bleibt.
Fazit
Ein grundsolides Wohnhaus mit viel Platz, Potential und herrlicher Aussicht – ideal für Eigennutzer, Mehrgenerationenwohnen oder auch als Kapitalanlage mit Ausbaumöglichkeiten.
Einfach perfekt für die junge Familie, unten einziehen oben vermieten.
Der Kaufpreis beträgt 429.700, -€, zzgl. Erwerbsnebenkosten (Grunderwerbsteuer 5%, ca. 1,5-2% Notar und Gerichtskosten), gerechnet immer auf den tatsächlichen Kaufpreis der Immobilie.
Provision: Bei Erwerb dieser Immobilie fällt für den Käufer keine zusätzliche Maklerprovision an.
Alle Angaben stammen vom Verkäufer. Die Firma Torsten Hibbeler IMMOBILIEN, Hatten, übernimmt daher keine Haftung für die Richtigkeit der Angaben. Insbesondere die Angaben zur Wohnfläche, zur Nutzfläche und zur Aufteilung der Wohn-/Nutzfläche sind von uns nicht durch ein eigenes Aufmaß oder eine eigene Wohnflächenberechnung kontrolliert worden. Die Angaben zum Baujahr und die Vorlage von Baugenehmigungen sind nicht durch Einsicht in die Bauakte überprüft worden.
Sie sehen gerade einen Platzhalterinhalt von YouTube. Um auf den eigentlichen Inhalt zuzugreifen, klicken Sie auf die Schaltfläche unten. Bitte beachten Sie, dass dabei Daten an Drittanbieter weitergegeben werden.


























































































































































